Overhaul of the building of the obstetric and gynaecological building of the Starobilsk Multidisciplinary Hospital, a municipal non-profit enterprise of the Starobilsk City Council
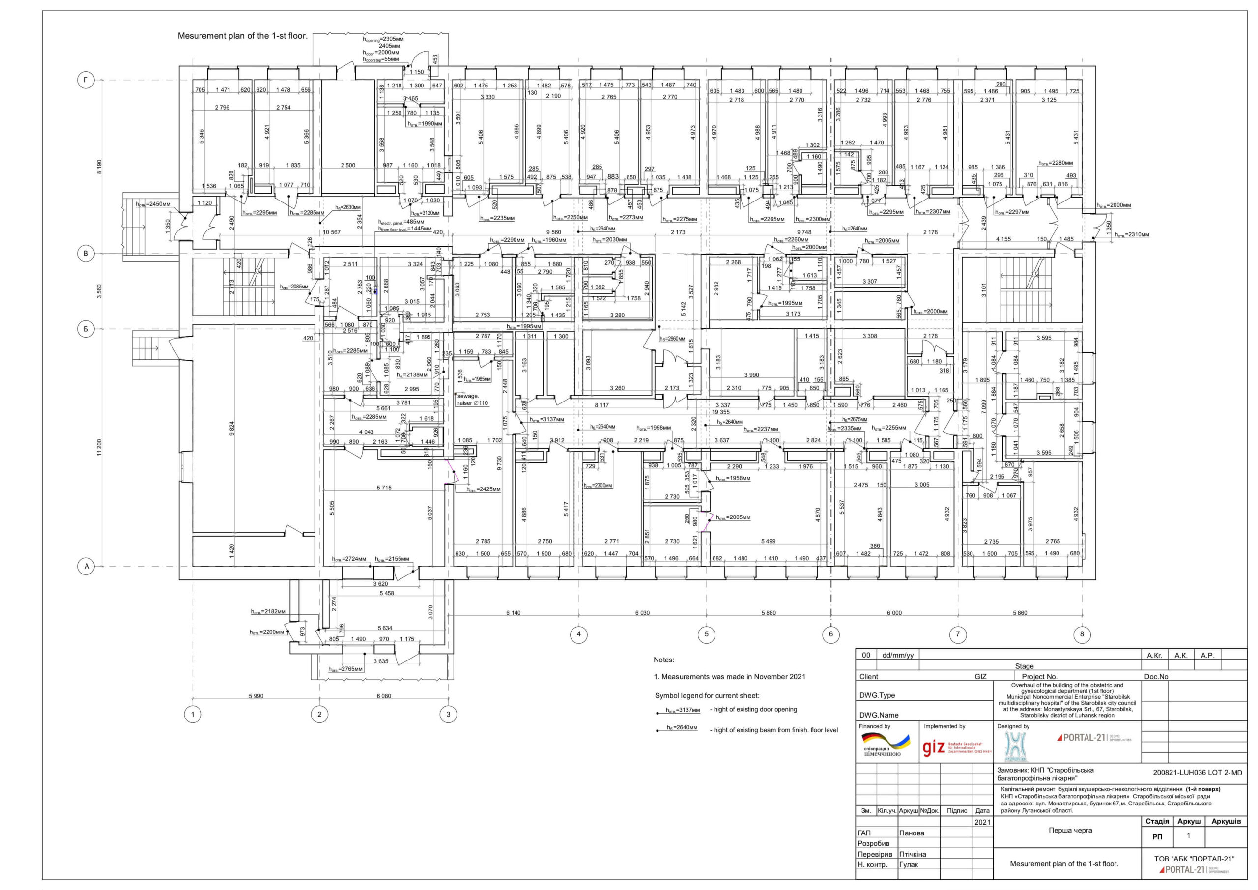
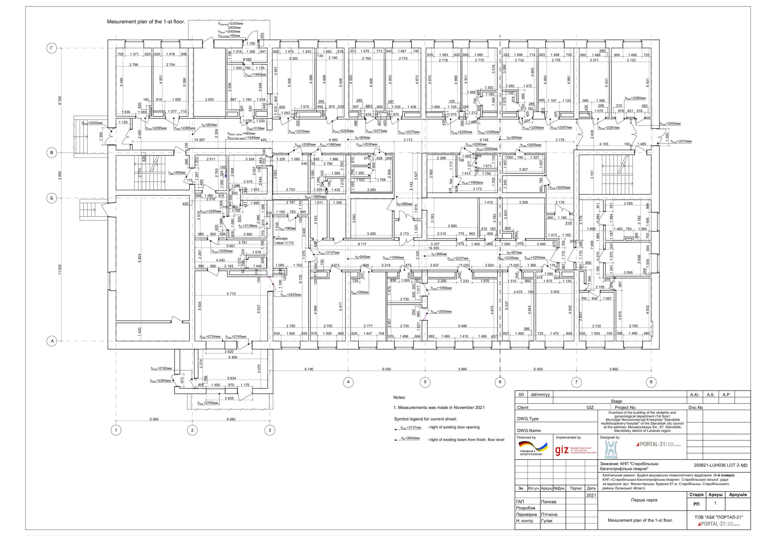
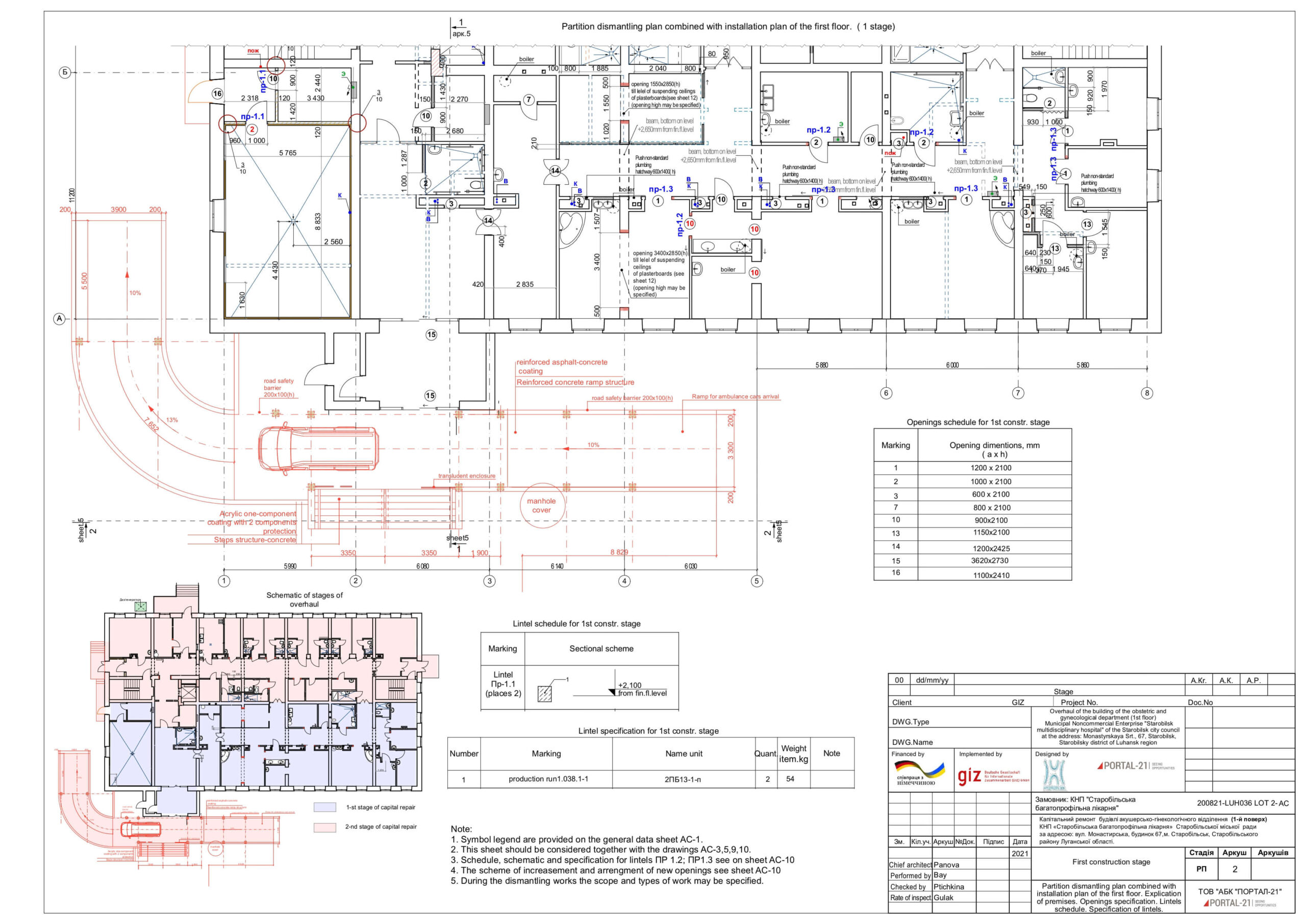
The project for the overhaul of the ground floor premises (first stage) included the construction of maternity wards and intensive care units.
– major repairs of the department’s auxiliary premises and creation of conditions for unimpeded access for people with disabilities and people with limited mobility;
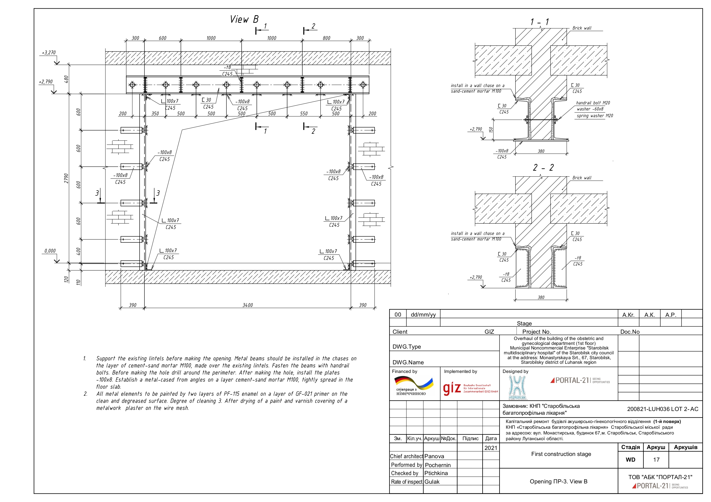
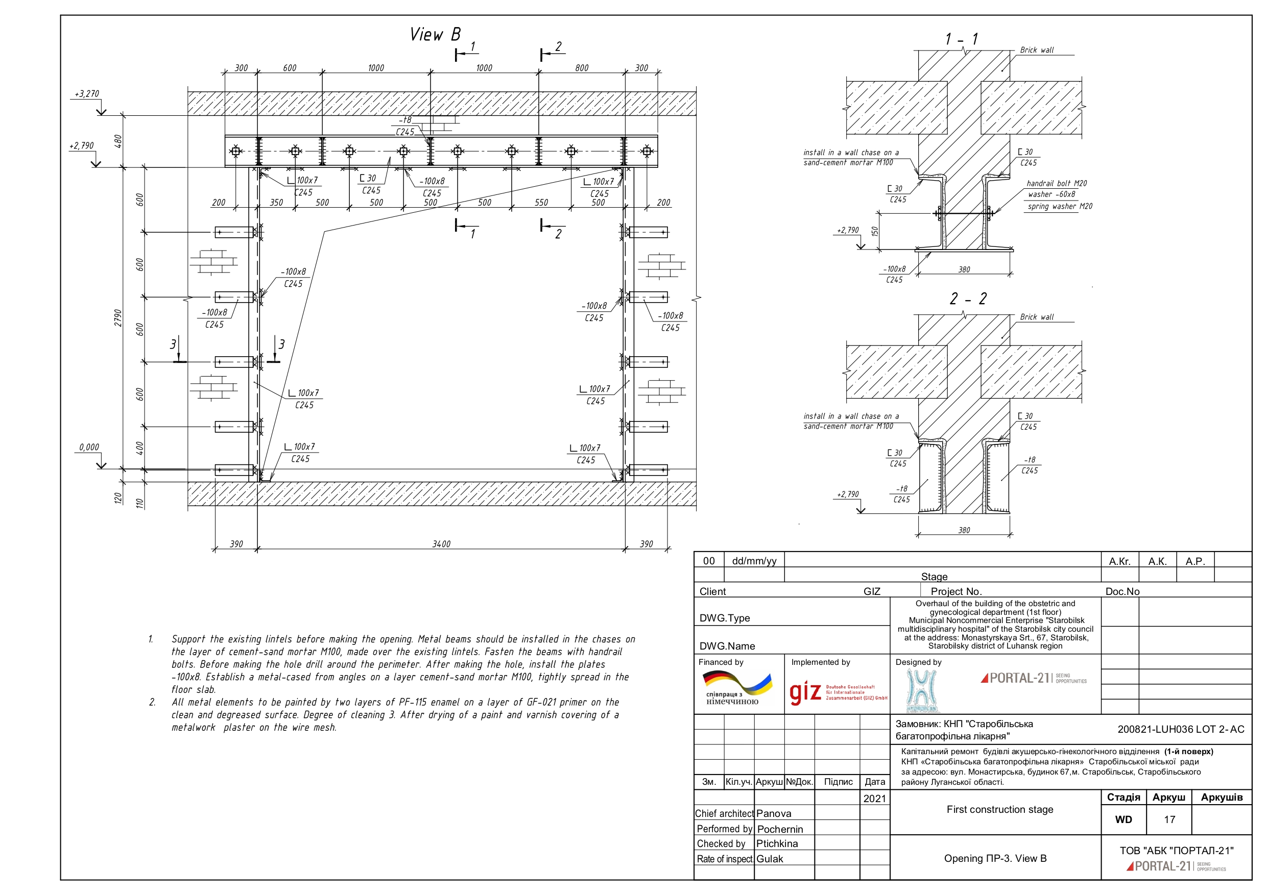
– The project includes measures related to the redevelopment of existing premises and the replacement of doors, floors and finishes.
– Planning requirements in accordance with the medical task;
Year:
2021Location:
67, Monastyrska Street, Starobilsk, Starobilsk district, Luhansk region
