Construction of a temporary educational space for a professional agricultural lyceum, Kherson region
Architectural solutions
Project description of the temporary educational space
According to the design assignment approved by the Customer, the construction of the educational space is envisaged using lightweight structures consisting of sandwich panels with insulation inside and a metal frame for their fastening. According to clause 1.3 of the Order of the Ministry of Regional Development and Housing and Communal Services No. 244 of 21.10.2011, the absence of foundations is a sign of a temporary structure, so the module is to be installed on screw metal piles screwed into the ground to a depth that takes into account the data of geological surveys. The design of the metal supports is ordered by the company that installs the mast under a separate contract.
The Alu Term C sandwich panel consists of a metal profiled or smooth sheet on the outside, mineral wool insulation on the inside, and a smooth sandwich panel surface or plasterboard with ceramic tiles in the bathrooms. The thickness of the mineral wool insulation is accepted according to the calculation.
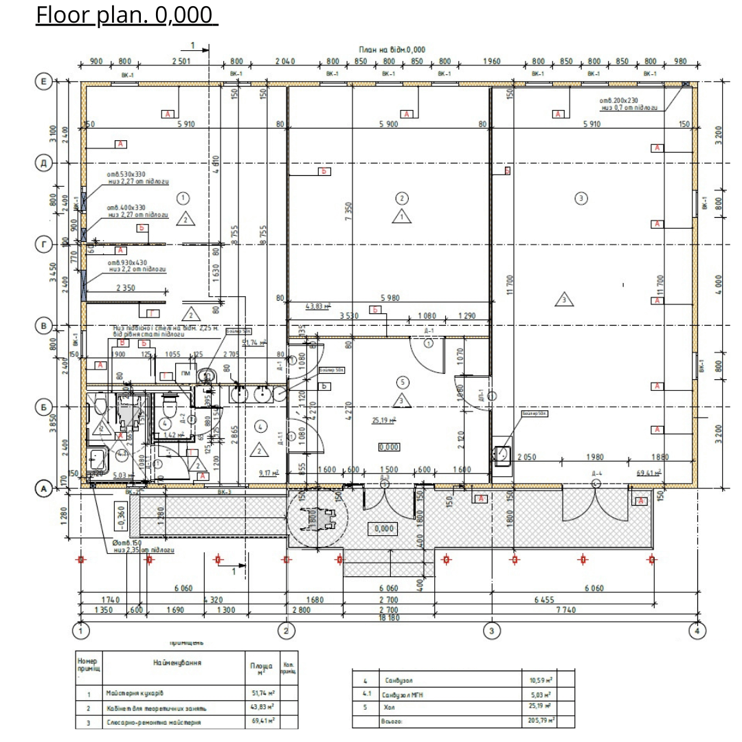
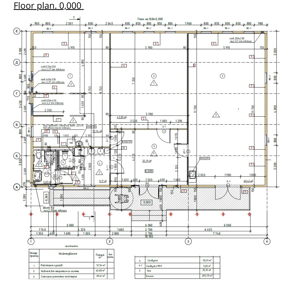
The educational temporary space consists of three main rooms: a chef’s workshop, a mechanic’s workshop and a classroom for theoretical studies. The purpose of these premises is described in detail in the section ‘Technological solutions’ of the explanatory note.
In accordance with the design brief approved by the Customer, the construction of the educational space is envisaged using lightweight structures consisting of sandwich panels with insulation inside and a metal frame for their fastening. According to clause 1.3 of the Order of the Ministry of Regional Development and Housing and Communal Services Nº 244 of 21.10.2011, the absence of foundations is a sign of a temporary structure, so the module is to be installed on screw piles
The project proposes screw piles as supports for the temporary building of the educational space and develops the design of the entrance, roof and ramp for visitors with disabilities. According to the conclusions of the geological report, which was completed in April 2025, the foundation for the metal piles of the temporary structure can be at a depth of 5m. It is loam with sandy inclusions and sand. The piles are screwed directly into the ground and can be dismantled in the same way.
Composition of the working draft:
Volume I – Explanatory note
Volume II – General plan
Volume III – Architectural solutions
Volume IV – Technological solutions
ToM V – Heating and ventilation
Volume VI – Electrical solutions
To VIII – Water supply and sewerage
ToM VIII – Fire alarm system Lightning protection system
Due to the confidentiality of the information, we cannot disclose all the details of the project. Thank you for your understanding. If you have any questions about cooperation, please send them to the official email address of the company: portal21info@gmail.com
Year:
2025Location:
Ukraine, Kherson region
